Шале №552

Цена строительства от 11 900 000 ₽* * Стоимость не является окончательной
Заявка на консультацию
  • Общая площадь 118 м2
  • Длина 12.5 м
  • Ширина 9.9 м
  • Материал стен Газобетон/пеноблок
  • Количество этажей 1
  • Подвал Нет
  • Мансарда Имеется
  • Гараж Нет
  • Терраса Да
  • Проживание Круглогодичное
  • Количество комнат 4
  • Количество спален 3
  • Количество санузлов 3
  • Вид проекта дом
  • Застройщик ДМ ГРУПП
  • Архитектурный стиль Шале
  • Отделка фасада Комбинированная
  • Крыша Двускатная
  • Можно купить домокомплект Нет
  • Модульный тип строения Нет
Планировки
Описание проекта

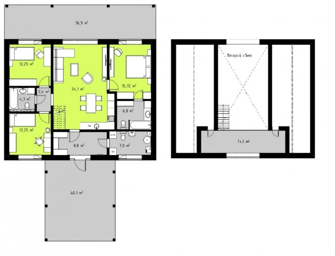
Дом функционально разделен на зоны кухни-гостиной, спального блока «детские» и спального блока «мастер спальни». Кухня-гостиная расположена в середине дома. Парковка для авто выполнена под навесом, рядом с главным входом в дом. Терраса находится под одной крышей с домом. Дом сдается в отделке white box. Гипсовая штукатурка Knauf под обои.

Дом: 118,1 кв.м (полезная площадь, без террасы и крыльца):

  • потолки 2,85 - 5,7м;
  • 2 спальни площадью 12,2 кв.м;
  • мастер спальня: комната 15,7 кв.м, санузел 6,8 кв.м;
  • кухня-столовая 34,1 кв.м;
  • гостиная 18,7 кв.м;
  • общий санузел 4,3 кв.м;
  • котельная 7 кв.м;
  • прихожая 8,8 кв.м.

комплектация «тёплый контур»

  • фундамент - жб плита ребристая;
  • стены - автоклавный газобетон;
  • перекрытия - деревянные;
  • кровля - утепленная, металлочерепица или профлист;
  • окна - 5 -ти камерный профиль кашированные;
  • отмостка - скрытая;
  • инженерка - закладные под ввод коммуникации. Разводка основной канализации. Септик переливной, 7 м3.

Комплектация «white bох» от 13 670 000 р.

  • комплектация «тёплый контур»;
  • фасад - декоративная штукатурка;
  • электрика - разводка электрики в котельной, подключение котельного оборудования. Заземление;
  • отопление - теплый пол + тёплые подоконники, разводка для датчиков автоматизации. Электро - котёл; водоснабжение - шитый полипропилен с латунными выходом для подключения;
  • чистовой пол - утепленная стяжка;
  • монтаж плитки в котельной;
  • штукатурка;
  • септик - переливной;
  • терраса и крыльцо жб

Выбор местоположения

Задать вопрос / написать нам

E-mail: domgis@mail.ru

Мы свяжемся с Вами в течение дня.

Тех. поддержка
Предмет обращения:
Тукущая страница

Мы свяжемся с Вами в течение дня.

Уведомление
Предмет обращения:
Тукущая страница
Обратный звонок
Обратный звонок
Выберите ваш город
Пожаловаться

Объявление опубликовано.
Изменения сохранены

Период публикации - бессрочный, при условии подтверждения актуальности каждые 50 дней. Уведомления будут отправляться на Вашу электронную почту.

Выберите причину снятия с публикации

Снятые с публикации объявления не участвуют в поиске и недоступны для подробного просмотра.

Для повторной публикации нажмите «Вернуть в публикацию»