Оптима 68 №722

Цена строительства от 3 450 000 ₽* * Стоимость не является окончательной
Заявка на консультацию
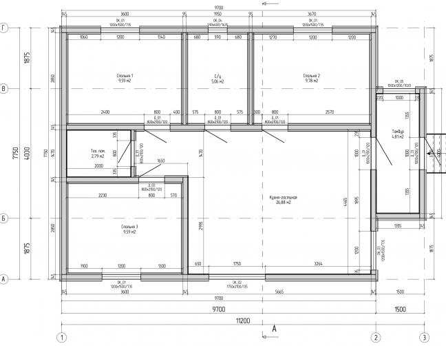
  • Общая площадь 68 м2
  • Длина 11.2 м
  • Ширина 7.75 м
  • Материал стен Каркас
  • Количество этажей 1
  • Подвал Нет
  • Мансарда без мансарды
  • Гараж Нет
  • Терраса Нет
  • Проживание Круглогодичное
  • Количество комнат 4
  • Количество спален 3
  • Количество санузлов 1
  • Вид проекта дом
  • Застройщик СДГ СТРОЙ ГРУПП
  • Архитектурный стиль Классический
  • Отделка фасада Обшивка деревом
  • Крыша Двускатная
  • Можно купить домокомплект Да
  • Модульный тип строения Нет
Планировки
Описание проекта

I. Домокомплект. Холодный контур

Стоимость: 1 850 000 ₽

Готовые элементы каркаса, сделанные по проекту, для самостоятельной сборки. Детали изготовлены в теплом и сухом цеху на специальном оборудовании. Тавровые клеёные стойки, балки, лаги пола готовы к сборке. Это улучшает качество конструкции и повышает скорость работы.

Что входит в стоимость?

1. Элементы силового каркаса из сухой строганой доски камерной сушки.

2. Плиты ОСП для создания пространственной жесткости конструкции

3. Стропила. Доска обрезная 195х45.

4. Обрешетка естественной влажности. Доска обрезная 150*25. Сосна.

5. Кровельное покрытие (металл).

6. Пол черновой естественной влажности. Доска обрезная 150*30. Сосна.

II. Домокоплект. Теплый контур

Стоимость: 3 200 000 ₽

С монтажом: 3 450 000 ₽

Готовые элементы каркаса, сделанные по проекту. В цену входит монтаж. Детали изготовлены в теплом и сухом цеху на специальном оборудовании. Останется только установить окна и дверь.

Что входит в стоимость?

1. Фундамент свайный: Сваи винтовые 8 мм, заполнение песчано-цементной смесь / сваи ЖБ.

2. Элементы силового каркаса из сухой строганой доски камерной сушки.

3. Плиты ОСП для создания пространственной жесткости конструкции.

4. Стропила. Доска обрезная 195х45.

5. Утепление: Утеплитель - минеральная вата. В стене 150мм, в крыше 200мм. Плотность - от 35 кг/м3.

6. Гидроизоляционная пленка (пароизоляция), гидро-ветрозащитная дифузионная мембрана (ветрозащита).

7. Сборка каркаса, обшивка ОСП, утепление, монтаж пленок и мембран, монтаж кровельного покрытия - входят в стоимость.

8. Отделка фасада имитацией бруса.

9. Перед началом работ утверждаем смету.

III. Дом с коммуникациями

Стоимость: 5 300 000 р.

1. Все что входит в комплектацию «теплый контур»

2. Окна ПВХ 5-ти камерные, 3-ой стеклопакет, дверь с терморазрывом.

3. Электрика базовая (1 провод на выключатель, 1 провод на розетку, 1 провод для освящения на 1 комнату) по всему дому. Заземление входит в работы.

4. Водоснабжение, водоотведение разводка труб по дому. Септик переливной 5 м3.

5. Отопление водяной теплый пол, электрокотел 9кв, бетонная полусухая стяжка.

6. Вентиляционные вытяжки 3 шт.

7. Отделка помещений ГКЛ

8. Пол обшит ОСП/фанерой.

Вас может заинтересовать
Вас может заинтересовать

Выбор местоположения

Задать вопрос / написать нам

E-mail: domgis@mail.ru

Мы свяжемся с Вами в течение дня.

Тех. поддержка
Предмет обращения:
Тукущая страница

Мы свяжемся с Вами в течение дня.

Уведомление
Предмет обращения:
Тукущая страница
Обратный звонок
Обратный звонок
Выберите ваш город
Пожаловаться

Объявление опубликовано.
Изменения сохранены

Период публикации - бессрочный, при условии подтверждения актуальности каждые 50 дней. Уведомления будут отправляться на Вашу электронную почту.

Выберите причину снятия с публикации

Снятые с публикации объявления не участвуют в поиске и недоступны для подробного просмотра.

Для повторной публикации нажмите «Вернуть в публикацию»